

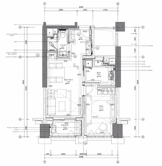
【戶型圖】
小區(qū)名稱:東方悅耀小區(qū)
產品風格:金屬極簡風格
戶型面積:53㎡
01玄關
大理石可以做墻面,做地板,
卻很少有人用它來做柜面。
是因為不想嗎?
不,是因為有著工藝限制。
但在這里,
我們讓你的柜子像是從懸崖上刻出來的一般。
即便不是真的大理石,
也有大理石的高貴氣質與堅實質地。
02客廳
談起金屬家具,
都是大氣奢華的模樣。
但我們的輕奢金屬系列,
不僅可以雍容華貴,
也可以小家碧玉。
在有限的空間里,
一樣可以綻放精彩。
掛柜、鋁掛板、懸空地柜......
我們不僅在地面上生活,
也在垂直的墻面上創(chuàng)造奇跡。
03餐廳
利用了一角狹小空間,
設計了一個精美的酒柜。
飯后小酌,只在舉手投足之間。
伸手就是可以享受生活的愜意與輕松。
04陽臺
所謂首尾呼應。
陽臺柜采用了和玄關柜一樣的風格。
在陽臺兩側,
利用緊湊的空間,
搭建起一個洗衣房。
實用又方便,
是眾多小戶型的經(jīng)典選擇。
05臥室
在臥室里設計了衣柜與電視柜,
均是采用了皮質柜面。
柔軟的觸感,
素雅的色彩讓臥室空間變得輕柔溫馨。
像是躺在濃郁牛奶中的夢境,
讓人放松舒適。